Maps of 2169 Mission
| Noisebridge | About | Visit | 272 | Manual | Contact | Guilds | Stuff | Events | Projects | Meetings | Donate | E |
| About | Vision | 272 Capp | Materials | Testimonials | Lore | Photos | Hackerspaces | 501c3 | Press | Press Kit | Zine | Help | E |
| Lore | Oral histories | History | Anarchy | 83c | 2169 | 272 Capp | Anniversaries | Rebase | Reboot | Humanitarian | Kitchen | Drama | V · T · E |
| 2169 | 2169 Maps | Kitchen | 2169/Elevator | 2169/Front Door | 2169/Accessibility | KitchenWorkingGroup | Edit |
|
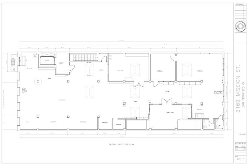
Note: Some things have been moved around since these maps were made. May 2017 map by Jarrod Hicks[edit | edit source]Here is an updated drawing of the Noisebridge space as of 2017-05-24. This is a minor update based on measurements done from 01/17/2013 to 01/20/2013. I have included a PDF for quick plotting, scaled for 36x24 paper and the original CAD file for future updates. I have been careful in my measuring but the walls of the space are not straight. Always verify measurements on site if tolerances for new projects are going to be tight. File:Noisebridge Floorplan 36x24.pdf Link to .dwg file on google drive https://drive.google.com/open?id=0BzIfMPvZG9o8TjBzWGdweFBwS1E December 2011 map by Tony Longshanks LeTigre[edit | edit source]DIGITAL BLUEPRINT of the Noisebridge hackerspace Error creating thumbnail: Unable to save thumbnail to destination Method of creation: Photoshop Created on: Monday, Dec. 26, 2011 Additional data: Happy New Year and Buckle Your Safety Belts, it's Going to be a Bumpy Night June 2010 map by Al Sweigart[edit | edit source]August 2009 3D view by Bjepstein[edit | edit source] |
